Haber Tempo

  1. Anasayfa
  2. »
  3. Yerel
  4. »
  5. Yenişehir’e değer kazandıracak projede ilk adım atıldı

Yenişehir’e değer kazandıracak projede ilk adım atıldı

Haber Haber -
68 0

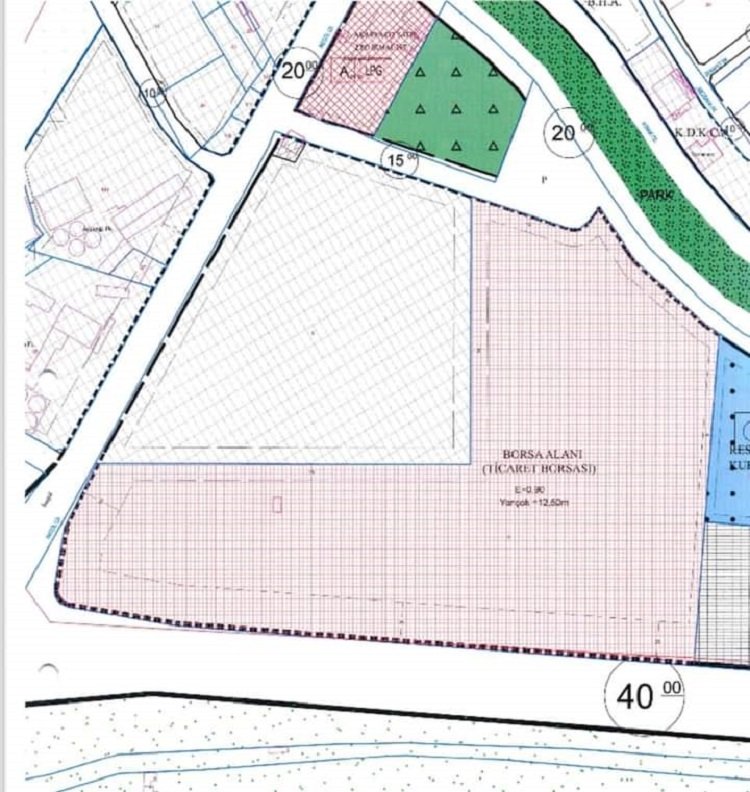
Yenişehir Ticaret Borsası Tarım ve Ticaret Merkezi Projesi’nin ilk adımları atıldı. Borsa tarafından ilçenin Tabakhane Mahallesi’nde 60 bin metrekarelik alan üzerine Ticaret Borsası Hizmet Binası, satış reyonu ve tarımsal depolardan oluşan bir merkez kazandırılacak.

Borsa’dan yapılan açıklamada, “Yenişehir ekonomisine büyük değer kazandıracak bu proje ilçemizin tüccar ve çiftçilerinin kullanımına uygun şekilde inşa edilecektir. Arsanın Borsamıza ve ilçemize kazandırılmasında emeği geçen TOBB Başkanı M. Rifat Hisarcıklıoğlu,

Bursa Büyükşehir Belediye Başkanı Alinur Aktaş, Yenişehir Kaymakamı Mustafa Güney, Yenişehir eski Kaymakamı Rahmi Köse, Belediye Başkanı Davut Aydın, Borsa Yönetim Kurulu Başkanı’mız Ahmet Aydın’a ve üyelerimize teşekkür ederiz.” denildi.

Kaynak : www.igfhaber.com

İlgili Yazılar

Bir yanıt yazın

E-posta adresiniz yayınlanmayacak. Gerekli alanlar * ile işaretlenmişlerdir